ΤΟΠΟΘΕΣΙΑ - ΕΡΓΟ


Τσαλδάρη 11
Ελαιόρεμα - Πυλαία, Θεσσαλονίκη

Αποτελείται από:

• Μονοκατοικία 1 (166,15τμ): Αποτελείται από Ισόγειο 63,79τμ - 1ο όροφο 41,23τμ, Υπόγειο 61,13τμ και δυνατότητα πισίνας. ΧΑΧ: 148,10τμ

• Μονοκατοικία 2 (178,50τμ): Αποτελείται από Ισόγειο 63,79τμ - 1ο όροφο 53,62τμ, Υπόγειο 61,13τμ και δυνατότητα πισίνας. ΧΑΧ: 129,00τμ

• Μεζονέτα (134,20τμ): Αποτελείται από Ισόγειο 48,27τμ - 1ο όροφο 39,00τμ και Υπόγειο 47,20τμ ΧΑΧ: 54,60τμ

• Διαμέρισμα 1ου ορόφου (111,85τμ) με αποθήκη 15,80τμ και θέση parking 11,14τμ

• Διαμέρισμα 2ου ορόφου (126,14τμ) με αποθήκη 15,54τμ και θέση parking 11,14τμ

• Διαμέρισμα 3ου ορόφου (126,14τμ) με αποθήκη 17,10τμ και θέση parking 11,14τμ

ΣΧΕΔΙΑΣΤΙΚΗ ΠΡΟΤΑΣΗ


Ανέγερση συγκροτήματος κατοικιών υψηλής και σύγχρονης αισθητικής και κατασκευαστικής ποιότηταςσε γειτονιά χαμηλής δόμησης στην Πυλαία Θεσσαλονίκης, με εύκολη πρόσβαση σε κεντρικά σημεία με καταστήματα και μέσα μεταφοράς.Το συγκρότημα αποτελείται από μία 3-όροφη οικοδομή και δύο μεζονέτες με δικό τους κήπο.

Καθαρές και λιτές γραμμές, και διαχρονικοί χρωματισμοί συνθέτουν την αρχιτεκτονική πρόταση των όψεων του συγκροτήματος. Η χρήση μεταλλικών περσίδων προσθέτει μια δυναμική άποψη, και καλύπτει τις ανάγκες σκίασης.

Η οικοδομή αποτελείται από μία ισόγεια μεζονέτα τριών επιπέδων (ισόγειο, 1ος όροφος, υπόγειο) με δύο υπνοδωμάτια, και τρία οροφοδιαμερίσματατριών υπνοδωματίων στον 1ο, 2ο, και 3ο όροφο.Τα οροφοδιαμερίσματα συνοδεύονται από χώρο αποθήκης στο υπόγειο της οικοδομής με πρόσβαση ανελκυστήρα.

Οι δύο ανεξάρτητες μεζονέτες αποτελούνται από ευρύχωρη σαλονοτραπεζαρία, κουζίνα, λουτρό και ένα υπνοδωμάτιο στο ισόγειο, δύο υπνοδωμάτια και λουτρό στον όροφο, και αποθήκες στο υπόγειο.

ΠΟΙΟΤΙΚΑ ΧΑΡΑΚΤΗΡΙΣΤΙΚΑ


• Κέλυφος θερμοπρόσοψης (εξωτερική μόνωση) με ελάχιστο πάχος 10cm βάσει προδιαγραφών ΚΕΝΑΚ
• Κουφώματα αλουμινίου ALUMIL με θερμοδιακοπή, διπλό ενεργειακό υαλοπίνακα και βαφή αντοχής της σειράς Structura
• Κουζίνες custom ελληνικής κατασκευής από συνεργαζόμενο επιπλοποιό ή επώνυμων ιταλικών κατασκευαστών (STOSA)
• Ντουλάπες custom ελληνικής κατασκευής από συνεργαζόμενο επιπλοποιό
• Υπνοδωμάτιο τύπου master με εσωτερικό λουτρό στις κατοικίες 3 υπνοδωματίων
• Ξύλινα δάπεδα στα υπνοδωμάτια για τις κατοικίες 2 και 3 υπνοδωματίων
• Ατομικός λέβητας φυσικού αερίου συμπύκνωσης
• Εντοιχισμένα καζανάκια GEBERIT και κρεμαστές λεκάνες
• Εγκατάσταση συστήματος συναγερμού και πυρανίχνευσης
• Εγκατάσταση δικτύου οπτικών ινών
• Εσωτερικό δίκτυο ethernet σε όλα τα υπνοδωμάτια και στο σαλόνι κάθε κατοικίας
• Προεγκατάσταση κλιματισμού
• Ατομική παροχή ρεύματος στον χώρο στάθμευσης για μελλοντική εγκατάσταση σταθμού φόρτισης ηλεκτροκίνητου αυτοκινήτου
• Ηλεκτρολογικός εξοπλισμός της εταιρίας LEGRAND
• Διαμόρφωση και κατασκευη περιβάλλοντα χωρου με φωτισμό led φύτευση γκαζον και φυτών
• Υπάρχει πρόβλεψη για ατομική πισίνα στις Μονοκατοικίες 1 & 2

ΕΙΚΟΝΕΣ ΤΣΑΛΔΑΡΗ 11


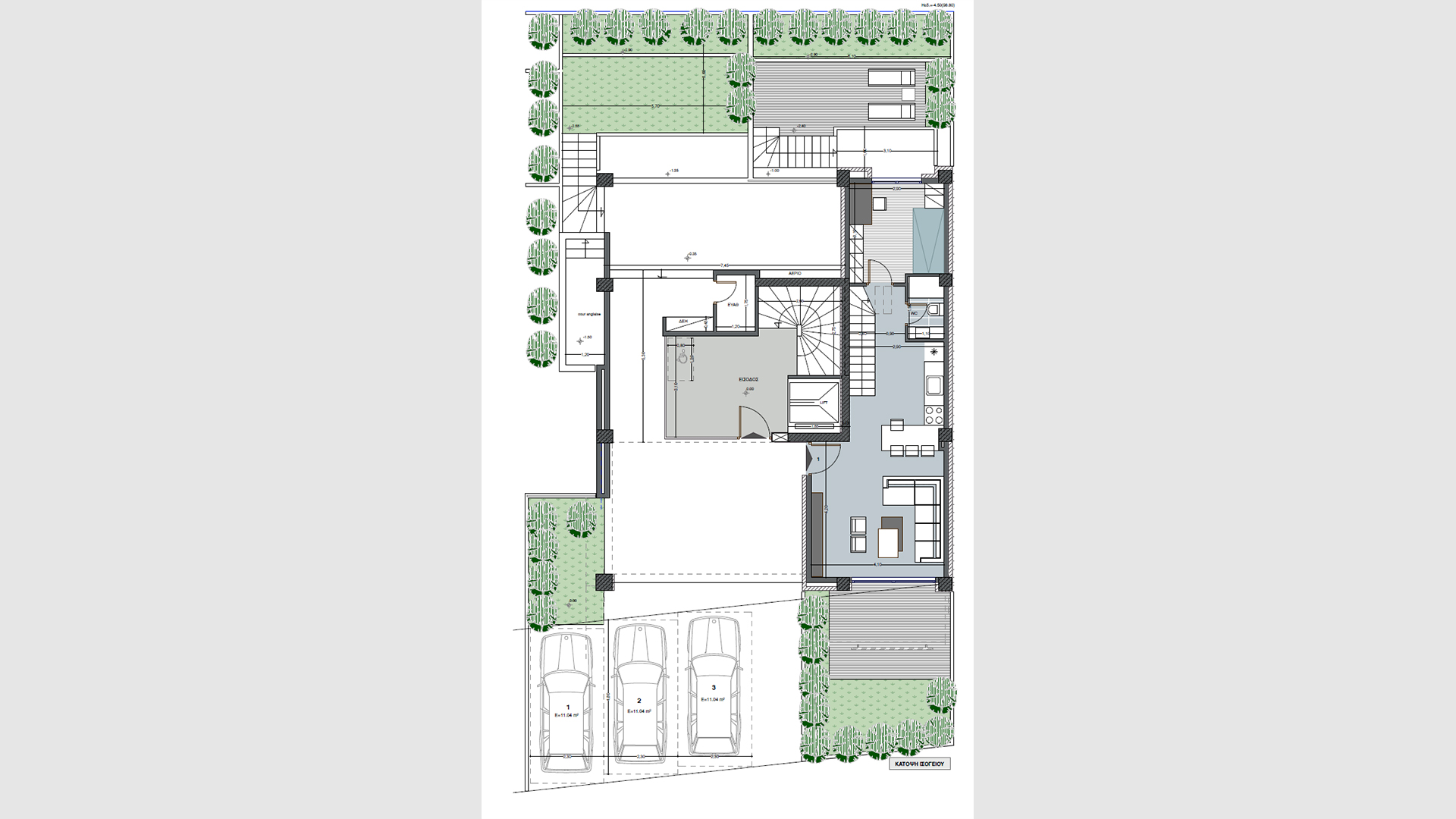
ΚΑΤΟΨΕΙΣ


ΑΚΙΝΗΤΑ ΠΡΟΣ ΔΙΑΘΕΣΗ


Image 1
ΛΕΥΚΟΣ ΠΥΡΓΟΣ, ΔΙΑΜΕΡΙΣΜΑ 3ου ΟΡΟΦΟΥ
3ΔΣΚ2ΜΠ 95 τμ
ΛΟΥΞ Α.ΑΕΡΙΟ, A/C
Image 1
ΧΑΝΘ, ΤΣΙΜΙΣΚΗ
Διαμέρισμα 1ου ορόφου
1ΔΣΚΜΠ 50τμ, ΥΠΕΡΛΟΥΞ, Α.ΑΕΡΙΟ, ΕΠΕΝΔΥΤΙΚΟ, A/C
Image 1
ΑΓ.ΔΗΜΗΤΡΙΟΣ/ΠΑΝΕΠΙΣΤΗΜΙΑ
ΔΙΑΜΕΡΙΣΜΑ 2ου ΟΡΟΦΟΥ
2ΔΣΚΜΠ, 78τμ, ΛΟΥΞ, Α.ΑΕΡΙΟ, ΕΠΕΝΔΥΤΙΚΟ, A/C
Image 1
ΙΑΣΩΝΙΔΟΥ, ΔΙΑΜΕΡΙΣΜΑ 1ου ΟΡΟΦΟΥ
2ΔΣΚΜΠ 75τμ, ΛΟΥΞ, Α.ΑΕΡΙΟ, ΕΠΕΝΔΥΤΙΚΟ, Α/C